Afdeling
Munkgårds Alle, Snejbjerg
313-0
                        Boliginfo
Adresser
                                    Munkgårds Alle 2 - 34, 3 - 61, 62 - 124,
                                    7400
                                    Herning
                                
Boligtype
Antal boliger
40
                        
Energimærke
C
Andet
                            Altan: Nej
                            Elevator: Nej
                            Husdyr tilladt: Ja
                        
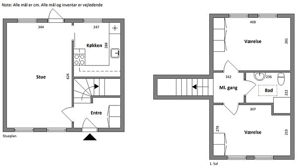
Værelser
3
Størrelser
86 m2
Husleje
6190-6494 kr.
Indskud
14981-15593 kr
Ventetid
6 mdr. - 1 år